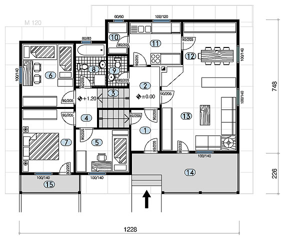
Tip 101

  • 1. Vetrobran 3.68 m²
  • 2. Predsoblje 3.88 m²
  • 3. Stepenište 3.78 m²
  • 4. Galerija 2.53 m²
  • 5. Dečja soba 7.20 m²
  • 6. Dečja soba 10.30 m²
  • 7. Spavaća soba 10.30 m²
  • 8. Kupatilo 4.08 m²
  • 9. WC 1.87 m²
  • 10.Ostava 1.98 m²
  • 11.Kuhinja 6.98 m²
  • 12.Trpezarija 7.56 m²
  • 13.Dnevni boravak 19.48 m²
  • 14.Terasa 11.60 m²
  • 15.Balkon 3.54 m²

  • P neto: 98.76 m²
  • P bruto: 110.22 m²